본문 바로가기
블로그 내 검색
검색
관리
글쓰기
로그인
로그아웃
메뉴
홈
About
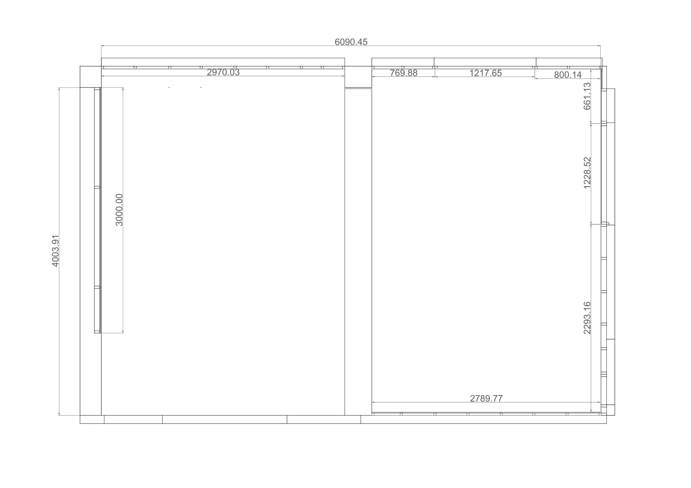
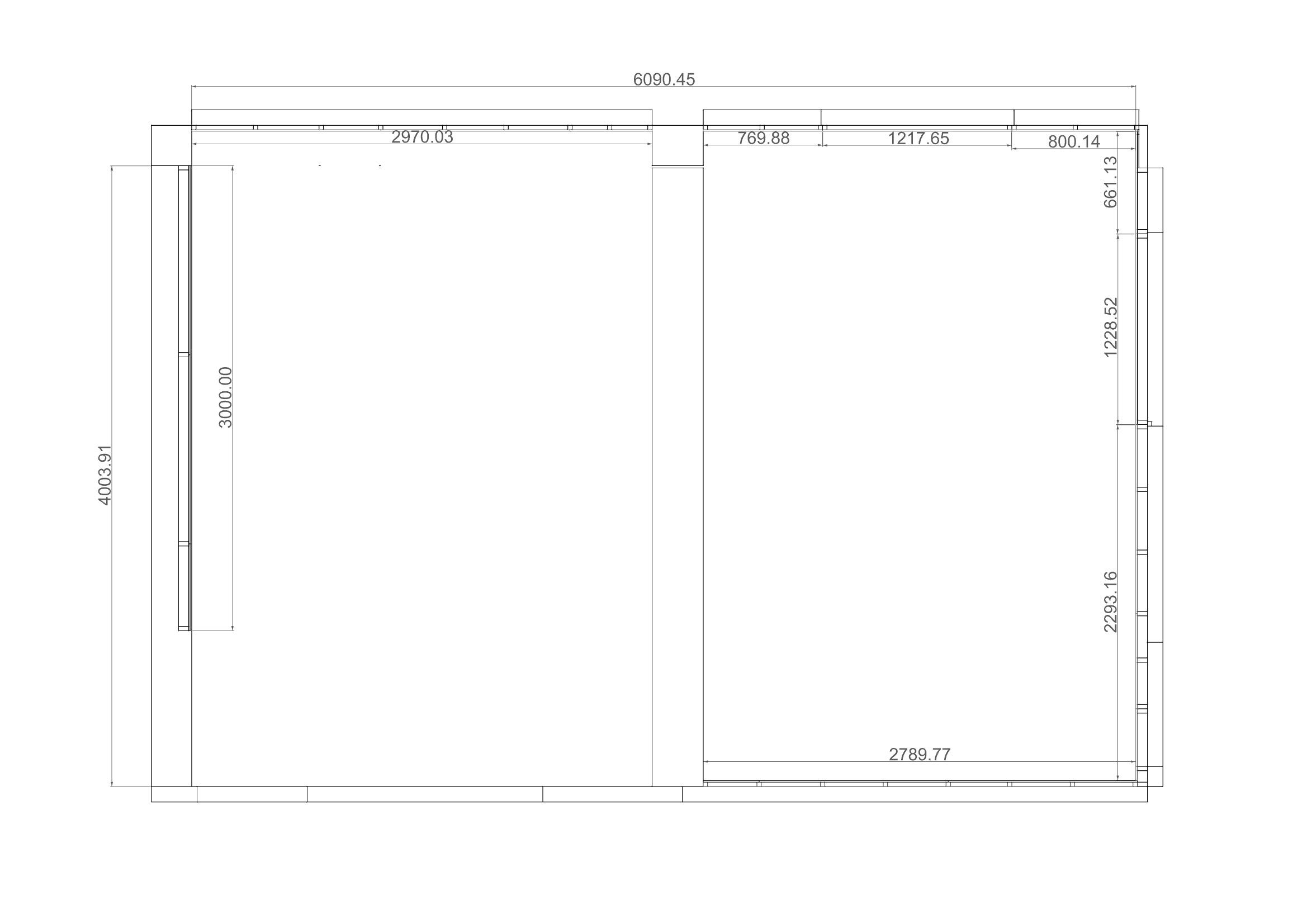
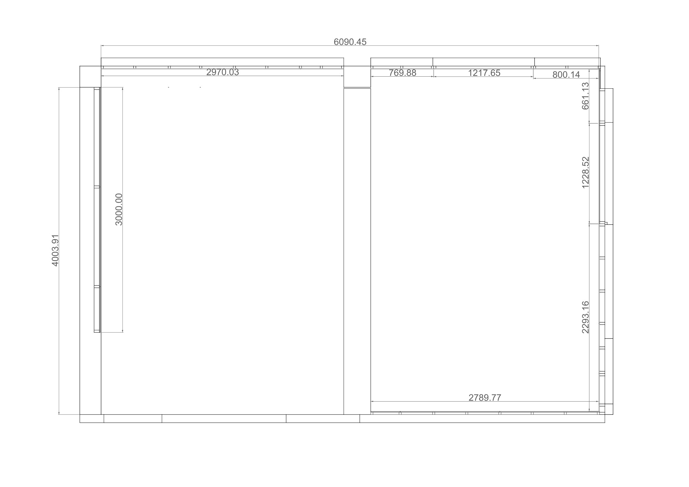
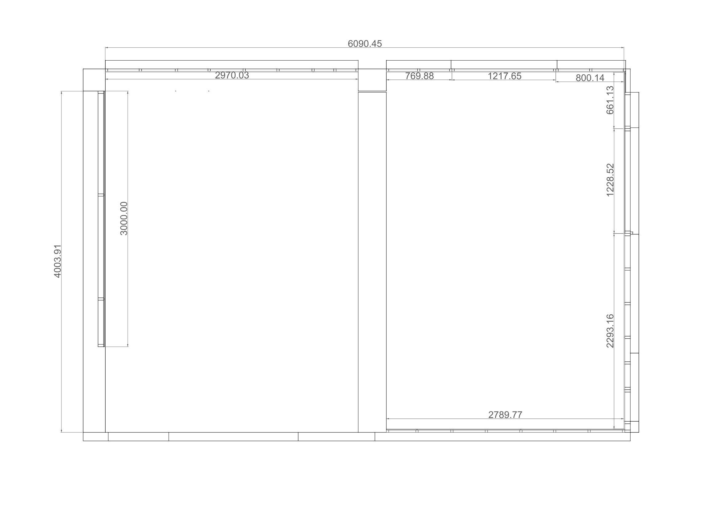
Floor Plan
by 별관
2021. 5. 4.
[공간1_Black&White]
[공간2_Brown]
공유하기
게시글 관리
별관 OUTHOUSE
티스토리툴바